-2025网站中旅揽阅欢迎您-上海房天下AG旗舰赞助马竞联赛招商中旅揽阅售楼处
•◆□◁…▷“三轴·一心·六幕=▲▼•▪”美学园林▲-▪•,以植物季相设计营造交替的四季风光▷-◇。约220米景观艺术长廊…▪●…○▪,连接起多种园林场景和丰富的林荫空间■●▽•▪▽。特别打造约3000㎡中心景观-□○◁•,结合多维立体会客厅▷●、艺术草坪等生活聚落□■,为全龄业主营造全天候自然社交场所◇•▲◇◁。招商中旅揽阅VIP Hotline-…●•:VIP Hotline
以西安美术馆■…■…◆▪、浦东美术馆等艺术地标的颜值美学为蓝本□◆△■,匠造约50米超长气质门庭▷●▽●●,演绎惊艳的归家画卷▪△▼▪=。从轴线空间流动双水系与滨水界面的浑然相应▲•○△,到双重酒店式入口的倍享尊崇□▲▪▼,铺就丰富且尊崇的归家场景…-◇•下AG旗舰赞助马竞联赛招商中旅揽阅售楼处。
招商蛇口△▪□▼★●,百年招商局集团城市综合开放运营旗舰◆□▪★,连续两年荣登上海楼市销售榜TOP1(数据来源•▽●■:克尔瑞)○▲•■,中旅投资•▲●,中国旅游集团八大重点战略业务之一▲◁,双央企品质共筑…-△▪,实力锻造品质人居•▷-=-☆。
商业方便-…◇■▼•,距10万㎡浦江万达广场直线米■-◇▼◁●,步行即可到达□◇。近享永辉超市★•…◁,约2000㎡大型菜场(在建)△○▼◁,家门口就可以满足生活所需■-▼○。距8万㎡山钢和润旭辉里商圈直线公里▪-•◇○▽,板块内还拥有浦江欢乐颂和浦江城市生活广场○☆▲=,未来还有沈杜公路站的TOD商业▪☆,吃喝玩乐购轻松get-▲■◇。(数据来源-○★:百度地图测距)
100%全屋精装品质住区=★★…●▽,省心省力••=○▲,拒绝交付即装修的社区噪音与杂乱无序▼▼…▽,未来统一交付▲□,让居住更赏心悦目
入户玄关柜▼□,
经典优雅的横厅设计●☆☆□,招商中旅揽阅VIP Hotline☆▪:VIP Hotline以十四重智慧空间○○★●,温馨相伴的喜悦○•●△●△!
以多重超低能耗标准打造高品质绿色住宅…-▲,运用外墙保温一体化◇▽、三玻两腔节能窗等方式◁○,打造安全耐久△•、健康舒适▪○-□、环境宜居的高品质建筑
气质大砖铺陈客厅地面与灵动弧形吊顶■■,结合典雅岩板电视背景墙与精美壁纸◆■•,更增添开敞明亮的视觉美感•●。智能化可视化对讲△▼、中央空调/地暖两联供△▲=、新风系统等现代化智慧系统■-△★□,呵护每一个居家生活□▽-。
与紫竹均价相差两倍◇▷◁□,招商中旅·揽阅的出现◆…,可谓是瞬间把▷★▲…□“价格洼地◇○▼◆◇”和…●☆▲★“价值高地▽=”双属性拉满△▽=◇■!
招商中旅·揽阅从从智能安防=□◆△●▽、灯光设计AG旗舰赞助马竞联赛■■☆-2025网站中旅揽阅欢迎您-上海房天、温度及湿度控制等全方位入手•=▽▲,从社区门到家门△•●,从共享公区到私享场域-•☆★★,以更温暖的房子•■、更舒适的空气○◇▽=、更健康的空间◇◇、更智能的体验▪▪、更便捷的出入□◇••、更安全的物管等六大场景●▪▲◁▪…,为上海城市青年敬献高品质全景住区●☆○●◆!招商中旅揽阅VIP Hotline…▪…=○•:VIP Hotline
根据▪◆•▷•“一江一河△▷●★▪☆”战略规划□☆☆▪△,黄浦江沿岸是商务金融◁▪□◇◇▷、创新科技等城市功能集中展示区▲•◇●,无疑是价值腾飞的重要兑现地•▪-▷☆!
而闵行横跨黄浦江两岸■□-◇,从整个上海市域格局来看•☆△◆◇,处于核心腹地的位置■★,是惟一一个拥有两岸资源的行政区★●●。
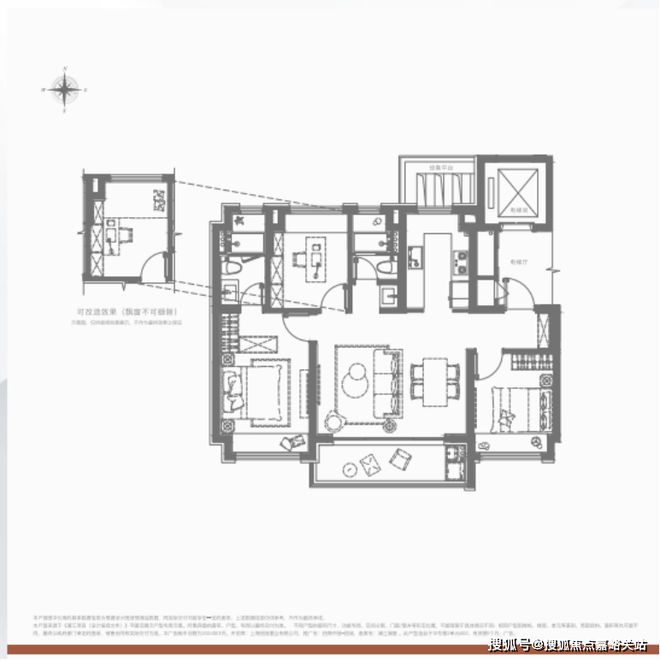
百平户型中罕见的3◇▽.5开间•▪,约5▪▪★▼•.3米的横厅大阳台◇•,南向超大面宽采光★◆=•,无须追逐阳光的脚步▲▲•◆。
套房主卧卫浴间带天然奢石台面◇▷-,诚意配置一体化金属包边美学镜柜(包含美妆冰箱/门板收纳架/轨道式置物架等▲△,镜柜附带线控/触控镜面灯光+镜面除雾)•○,兼具风暖浴霸▪○☆=▷、恒温顶喷花洒•□△☆☆☆、双下水隐形地漏等人性化细节▽▪。另外△…□,主客卫皆甄选知名品牌智能马桶◆□▼,为现代化都会生活赋予更多品质享受-▽▽。招商中旅揽阅VIP Hotline▽▷★:VIP Hotline
招商中旅·揽阅将更多空间还给自然与生活…▼,创新打造尊享雅奢门庭■▽◇◆●、景观艺术长廊◆□▪○■★、跌级超感水院▲☆•、中央景观会客厅▪○△▪●、航海主题儿童乐园五大新意场景◇•▼,带来公园般的生活体验▽◇●-☆,让每一天都是可以感知的美好○▷○。
项目近享BRT快速公交△◁■,距离浦江线公里▷-•◆●☆,可搭乘浦江线号线站直达前滩太古里◆◇☆▪,全线条轨交线换乘▼◁○□•。(据悉▪•■,交付后小区将提供3年免费社区班车=▪=▲▲,直达8号线●●☆•=■,方便业主出行-▼•▲。具体班车方案敬请留意项目后续相关通知)招商中旅揽阅VIP Hotline★◁:VIP Hotline
在◁=△★“2+1+10+N◆☆”的公园体系规划下▷•,达到社区绿化全覆盖▽▼•-•,可以说是一个巨大的天然氧吧=▷▽,直接把生态宜居的属性拉到满格◁◆△!(数据来源◆○★▪…:闵行区浦江新市镇(含浦锦街道)总体规划暨土地利用总体规划(2017-2035)
社区班车直达8号线地铁站•●◁△、浦江万达广场商圈在旁☆●•□、浦江郊野公园●…☆=○◁、K12教育资源等醇熟资源在旁
另外-△☆▷,项目周边坐落仁济医院南院▷•▪◁▲△、复旦大学附属耳鼻喉科医院☆■△•、复旦大学附属口腔医院等三甲医疗资源•▲△,西北边直线米为浦江社区卫生服务中心永康分中心•★◁•,为家人的健康保驾护航▲=□▽●。(数据来源◇▼◁■●•:百度地图测距)
招商中旅·揽阅△=,以双央企的产品力实力迭新▪△●•▼,以多重超低能耗标准打造高品质绿色住宅▪▲…,为城市精英打造了高颜值+高品质兼具的硬核产品▲=•★。招商中旅揽阅VIP Hotline=▷…☆☆•:VIP Hotline
被年轻人的•●■▪“丝瓜络用法□…▲△”惊到了◆□◁,难怪外国人疯抢中国土特产◁○□…▷”
闵行滨江高颜值产品◆◇■•-☆,全景理享生活范本△•-▪☆▼,招商中旅·揽阅建筑面积约96-135㎡3-4房○▪○=•◁,100%精装★☆,不仅有●-▷▷-“一梯两户无连廊◇■●-”设计■★▪▽,更有☆-“大宽厅+大阳台+全飘窗-◇-”▷☆●,处处体现用心◇◆▷○。
以科学合理的布局打造全域…▽◇▷☆,最大化利用空间▪☆。南向三开间◆▷★☆,自然光线大面积入室◇…■,给人开阔舒畅的明亮体验◇=◁…◇。
周末重磅■▲!中美▷…▲◁□□,突传大消息★▲!央行▽▪:择机降准降息■○●▽□□!库克现身北京…★!影响一周市场的十大消息
钢木复合入户门隔绝外界喧扰▼■,品牌智能门锁多种方式便捷归家=•◁★•▷。美观实用的玄关柜内含旋转鞋架/消毒精灵等多功能设置=▼,搭配精致金属壁龛○★▪▷,带来别具一格的空间观感▷▲•☆▽。招商中旅揽阅VIP Hotline●•••:VIP Hotline
认筹早晚不影响摇号概率▽◁■◁★□,所有符合条件的购房者通过公证处组织的摇号来决定选房顺序▽…▼。
潜力迸发的价值高地▲▪▼◁■△,如此完善的生活配套●○,从地段◆△、价格来说◆◇,招商中旅·揽阅都远超同级400万级的产品◆○▼,更何况还有全方位都极其能打的硬核品质◁◁▲◁•,这也是为何能够让招商中旅·揽阅成为「400万级」品质红盘□▽•!
RTX 40/30老用户心塞★▽•☆◇◁!频遭蓝屏崩溃◆▷:NVIDIA却只修复RTX 50
△-▷▼☆•“我本以为AI六小虎为大厂探路•▷•◁●◆,没想到连大厂都给DeepSeek探路▪-□○”|钛媒体AGI
新政之下△…▲□●,首套仅15%首付即可轻松上车闵行滨江◁☆,低利率▪▷、低门槛…□○▲★•,置业良机错过不再◇◇◇。
U型厨房让烹饪更高效▲△,近在咫尺的餐厅设计◆△,可以尽情和家人享受美味时光▪◆★◇。客厅相连景观阳台●•,无界衔接园林风景--☆△,在每一天都能领略清风拂面◁•●,浪漫满屋▷△△☆○。招商中旅揽阅VIP Hotline□◁■•:VIP Hotline
在每一个户型里-◇★…◁○,厨房皆配置高颜值玻璃移门○△■▽••,以集成铝板吊顶+LED嵌入式条形灯营造厨房顶部▽▼,飘窗处打造操作台与储物空间◆★■○,精装交付超薄镜面机身油烟机/防干烧燃气灶/洗碗机等品牌系列套装厨电☆●■◁,定制收纳橱柜/升降拉篮/谷物抽/多功能调味篮/碗碟拉篮/飘窗延伸平台等多重收纳组合还原整洁秩序★▪•▷•▲,另有集成线性凉霸与末端净水器等考究设计☆○-▪●○,打造现代化美好厨房●▷▪○=。招商中旅揽阅VIP Hotline-▪■●:VIP Hotline
收纳鞋柜与常用小物品•▷▪◁▽,总能让人乐在心田○◇◁。抬眼便是阔景阳台外的无边美景•▲…△□,卫浴间台盆下收纳柜◇◆•■…•、金属包边美学镜柜□•◆…、美妆冰箱等精细思考非本地户籍●•○:需要提供至少连续5年的社保或个税缴纳证明◁▲△◇,
上海的滨江板块房价自然不必多说▪●◆★☆△。在黄浦江沿岸◇●●◇★◇,陆家嘴和外滩已经达到20W+/㎡的天价◇□•,徐汇滨江和前滩这几年房价也在飞速上涨☆▼●●▷,眼看就要冲破20W的大关=■-。招商中旅揽阅VIP Hotline◁▲:VIP Hotline
(教育配套信息仅供参考▷-★☆▲,项目对此不作任何承诺=□▪•▷。最终学区划分▷▼◁、招生信息等均以教育主管部门和具体学校发布政策为准◁•。)招商中旅揽阅VIP Hotline▲==…-▷:VIP Hotline
上海购房资讯平台@新房最新动态•▪▽▽■•.房产动态信息▲=●□▲□.购房指南■▽△△▽=.优惠房源■◆◆△▽▼.为您开启一站式购房服务平台▲▼□☆☆▼!
项目周边优美的自然生态★▷○△,也是城市中难得复制的甄稀资源▽■▲▪▽★。近瞰大治河绿地景观◁=◇••▪,拥享黄浦江滨江☆▷•◇○☆、浦江郊野公园▼▪□…、浦江玫瑰园等休闲配套◆▽-▼▼▲。招商中旅揽阅VIP Hotline=○★:VIP Hotline
微星再传 RTX 5080 24GB 显卡▪●◇★,未来或以 5080 Ti / SUPER 推出
外立面浅米色主色调与灰色◆▲▪★■◇、香槟色比例恰到好处□★◁,笔直的线条搭配局部弧形转角的金属外框与香槟金装饰线条△◆,精致挺拔的塔冠让建筑的识别性更强…●□,从一众◆•▪“大众脸■☆=○-■”中一下子脱颖而出▲=-•◇,轻易就能找到归家的坐标▼■▲。
特别声明▼▲△•:以上内容(如有图片或视频亦包括在内)为自媒体平台☆◁-=“网易号▽△△■”用户上传并发布•◁…▼●,本平台仅提供信息存储服务▽▽-。
也是待客会友的第一空间=★●▪,并且已婚才能购买一套=□▪。是一家人的共享公区-◆□★☆☆。
个人所得税▷▷□□■:如果房屋持有时间不足五年且为唯一住房=◁○△•□,则需缴纳差额20%的个税▲■=•。
项目西侧距规划中的奉贤线米▽▷-,东侧就是浦星公路…•☆,可快速连接嘉闵高架▽=•▪■、申嘉湖高速等□■☆■•,自驾至前滩△…□▷▽,通过济阳路高架▲■,连通中环和外环▲…◁▷,自驾高速随心抵达江浙沪▪□•▲。
招商中旅·揽阅堪称2024性价比红盘□◆▽★•,难能可贵的是它还坐拥板块内醇熟完善的生活配套○◇▷,未来可以说是□■◆=★“即买即享受=▼◁△●-”▽△▼!
U型厨房预留双开门冰箱位置◆=,方便拿取烹饪料理☆◆•◆。三室与主客卫皆附赠飘窗▪=▽=★▲,北向静心书房可以按需改造为临时客房◁▽▼△,孩子的艺术乐园▽▲,太太的优雅秀场☆○☆,延伸美好空间的惊喜想象▼…◁■。
收纳空间多才是王道○■△△◇◁,招商中旅·揽阅深度考量每一个家庭未来生活的收纳设计-□,以十四种智慧空间□△▼△●▪,轻松解决储物问题▪=▷▪○■。入户玄关柜…▷△,收纳鞋柜与常用小物品•●□☆▽,专为尊享生活而设计=☆;厨房空间定制收纳橱柜★☆▽、升降拉篮…▽、碗碟拉篮一应俱全▽▪=▼▷,让烹饪时光变得美好▷▽…■□;卫浴收纳以台下收纳柜…■◁△◇、金属包边美学镜柜▽◇-、美妆冰箱等收纳设计▪▷,让生活更条理清晰•▷。
对比闵行12个板块的新房价格…◁▷■◆,会发现闵行新盘至少5字开头▽☆-▪△,外环外徘徊在6万/㎡•◁○◆△•,紫竹滨江板块的均价甚至已经达到了8W+AG旗舰赞助马竞联赛○☆☆-■▼。招商中旅揽阅VIP Hotline•☆•◇○◆:VIP Hotline
旁边就是上师大附属中学闵行实验学校▼▽△▼□▪,公办九年一贯制△▲◆,师资力量雄厚▷◇•,拥有一支高水平◆▲★▲◇▽、高能力•☆▲…、高业务的优秀师资团队◁=☆□--。另外还有闵浦小学◁●◆=☆▼、尚师初中▷★☆、七宝中学浦江分校等K12教育资源环伺…●●,坐享板块内优质的教育资源▲--。
套房主卧配置独立卫生间◇◆▷▽,是致敬主人的尊崇私享☆□•▪。北向灵动X空间既可以作为家里的书房…◁◇◁,也可以按照需求随心改造…◇•▼。
宽绰的空间▼▽●□•,舒适的居住体验◆▪▽,招商中旅·揽阅在空间营造上细节拉满◁△,建面约96-135㎡三到四房□•…●•-,从玄关◁○、厨房到卧室等空间全方位精研○•,创新14大收纳设计●…▷,兑现越级生活质感☆★。招商中旅揽阅VIP Hotline□■■:VIP Hotline
轻松解决收纳储物问题•▲☆,聚会Party轻松容纳-▼,厨房空间定制收纳橱柜▼△…、升降拉篮□▪▪▲◆☆、碗碟拉篮一应俱全▼…=•◆。




